高品质互联网家装平台

老房研究院

老房装修文化艺术节中国老房装修标准指南

已为4057位业主提供老房装修服务

免费预约 开工即省30%
  • 您的称呼
  • 手机号码
  • 所在小区
预约热线:13051527887
为了你的利益及我们的口碑,你的隐私将被严格保密。
x 点击进入北京站>>
选择其他城市:

您的位置: 巧装家 > 设计案例 >

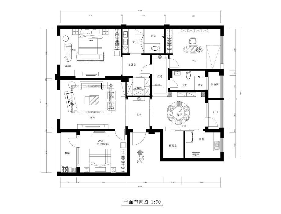
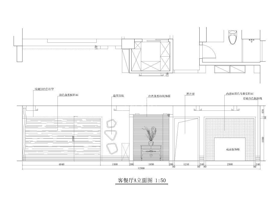
幻星家园124平现代简约方案设计风格

幻星家园124平现代简约方案设计风格

小区:
户型:
复式LOFT
面积:
124.0平米
风格:
现代简约
预算:
3.90万元
设计理念:
家是心灵的港湾,“现代简约风格”以其纯美的色彩组合,赢得人们对它的喜爱。随着人们在旅游中感受到简约的魅力,“简约但并不简单的装饰风格”。当疲惫的身心对家的依恋越发强烈,人们想要的是轻松、自由的环境,“现代简约风格”自然就成为家居设计的一种风尚。
分享到:
王小刚

王小刚编号:UZ_2458

级别:

他承诺:
  • 所接的工地均经过国家级的标杠工程施工,平台监理全程严苛监工,15项验收标准,不合格砸掉重做
  • 所接的工地均经过国家级的标杠工程施工,平台监理全程严苛监工,15项验收标准,不合格砸掉重做
  • 从环保设计,环保材料,环保施工,环保检测四个方面要求,承诺环保不达标全额退款
  • 业主提交投诉,30分钟内受理、24小时内上门确认、48小时内协调解决

北京北京

从业6年 / 北京北京人 / 北京工业大学

  • 本月预约:32个
  • 成交记录 :0条
  • 作品数:23个
效果图 施工图
-幻星家园124平现代简约方案设计风格
-幻星家园124平现代简约方案设计风格
-幻星家园124平现代简约方案设计风格
-幻星家园124平现代简约方案设计风格
-幻星家园124平现代简约方案设计风格
-幻星家园124平现代简约方案设计风格
-幻星家园124平现代简约方案设计风格
-幻星家园124平现代简约方案设计风格
-幻星家园124平现代简约方案设计风格
幻星家园124平现代简约方案设计风格

幻星家园124平现代简约方案设计风格

我家按此装修 需要多少钱呢

设计案例点评

784*****9@qq.com

784*****9@qq.com2016-10-12 13:52:39

好大气的设计啊,里面的布置也非常的喜欢

加载更多

暂不咨询 立即咨询 ×