高品质互联网家装平台

老房研究院

老房装修文化艺术节中国老房装修标准指南

已为4057位业主提供老房装修服务

免费预约 开工即省30%
  • 您的称呼
  • 手机号码
  • 所在小区
预约热线:13051527887
为了你的利益及我们的口碑,你的隐私将被严格保密。
x 点击进入北京站>>
选择其他城市:

您的位置: 巧装家 > 设计案例 >

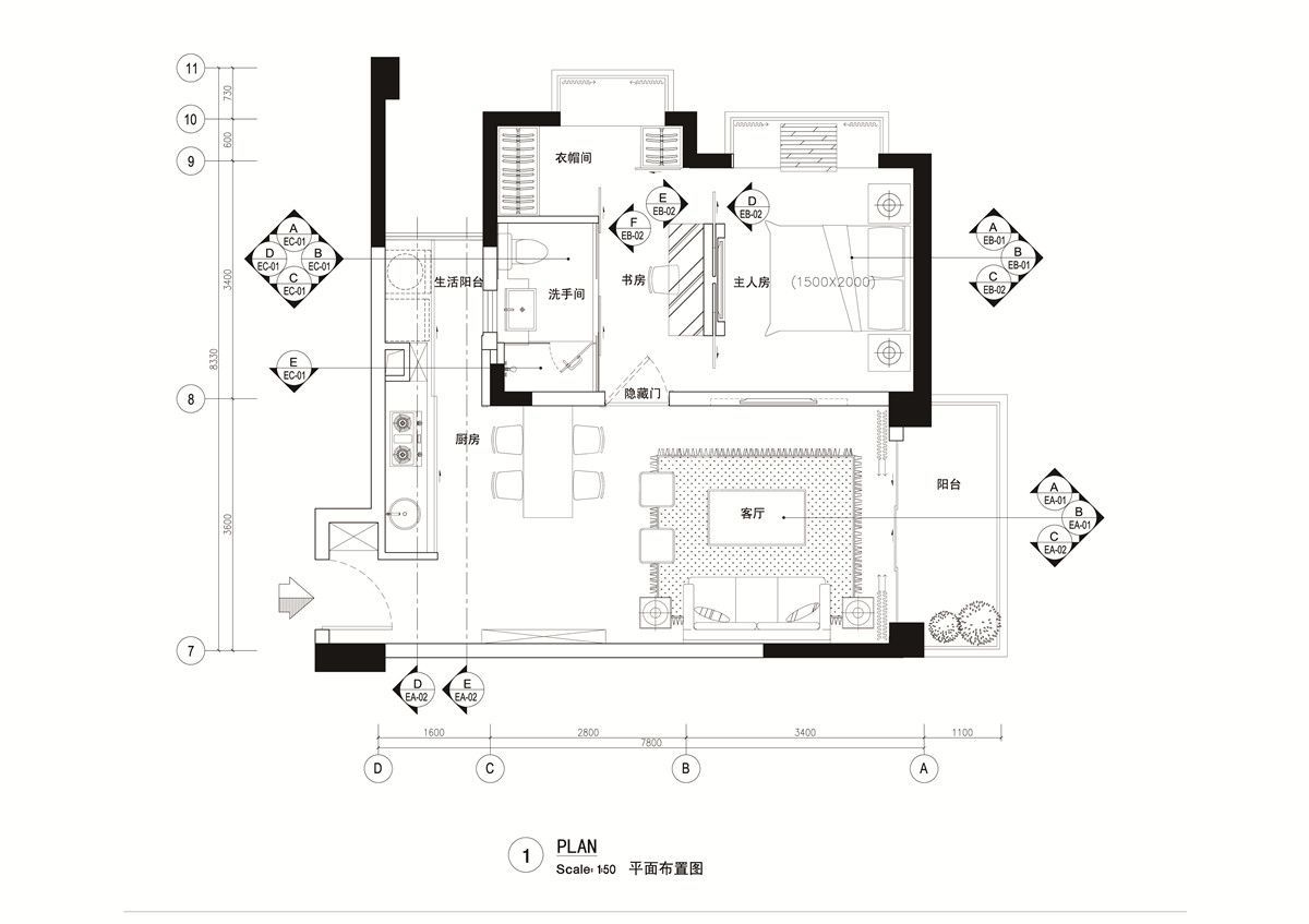
望京西园60米现代风格设计方案

望京西园60米现代风格设计方案

小区:
望京西园
户型:
普通
面积:
60.0平米
风格:
现代简约
预算:
10.00万元
设计理念:
小而有秩,自然时尚。在面积极小的空间内营造自然而又时尚的气息,同时满足业主的储物需求,对设计师来说,也是极大的一个挑战。三大要素:“藏”,把人间烟火的厨房藏起来,使餐厅整洁有序;“木”,木制品总是会带给人自然的气息,木制品与白色家居产品的结合,自然而时尚;“雅”素雅的要义是,少而精,尽量少的颜色,不同材质间的过渡处理,都是体现雅致的手法。
分享到:
刘旭

刘旭编号:UZ_1085

级别:

他承诺:
  • 所接的工地均经过国家级的标杠工程施工,平台监理全程严苛监工,15项验收标准,不合格砸掉重做
  • 所接的工地均经过国家级的标杠工程施工,平台监理全程严苛监工,15项验收标准,不合格砸掉重做
  • 从环保设计,环保材料,环保施工,环保检测四个方面要求,承诺环保不达标全额退款
  • 业主提交投诉,30分钟内受理、24小时内上门确认、48小时内协调解决

北京北京

从业6年 / 北京北京人 / 北海艺术设计学院

  • 本月预约:45个
  • 成交记录 :5条
  • 作品数:25个
效果图 施工图
-望京西园60米现代风格设计方案
-望京西园60米现代风格设计方案
-望京西园60米现代风格设计方案
-望京西园60米现代风格设计方案
-望京西园60米现代风格设计方案
望京西园60米现代风格设计方案

我家按此装修 需要多少钱呢

设计案例点评

2016-10-09 13:47:34

好大气,这样的设计真的让人想不喜欢都很难

加载更多

暂不咨询 立即咨询 ×