高品质互联网家装平台

老房研究院

老房装修文化艺术节中国老房装修标准指南

已为4057位业主提供老房装修服务

免费预约 开工即省30%
  • 您的称呼
  • 手机号码
  • 所在小区
预约热线:13051527887
为了你的利益及我们的口碑,你的隐私将被严格保密。
x 点击进入北京站>>
选择其他城市:

您的位置: 巧装家 > 设计案例 >

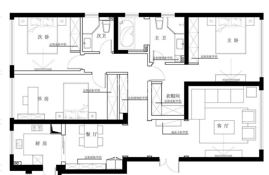
丰台区政馨家园130平现代简约风格设计风格

丰台区政馨家园130平现代简约风格设计风格

小区:
丰台区政馨家园
户型:
复式LOFT
面积:
130.0平米
风格:
现代简约
预算:
8.00万元
设计理念:
好的设计,不苟于风格,但一定要“适为己用”。本案大气且从容,去藻饰之华靡,汪洋恣肆。客厅运用黑黄灰的经典搭配,令人眼前一亮,独特的沙发背景墙与玄关相互呼应,时尚易逝,风格永存。别致的灯具平添了一丝生活的情趣。日出而作,日落而息,再繁忙的工作日也不能忽视生活。流畅的生活东线与宽敞的空间环境,带来良好的感官体验。玄关衔接了客厅与餐厅,也成为整个空间视觉的聚焦点,在低调的空间配色中抢眼却不妩媚。书房的配色则以金属色和浅灰色的结合,墙纸与原木家具的配合,美观性与实用性完美结合......各处细节无一不呈现独一无二的设计理念。
分享到:
赵会英

赵会英编号:UZ_3051

级别:

他承诺:
  • 所接的工地均经过国家级的标杠工程施工,平台监理全程严苛监工,15项验收标准,不合格砸掉重做
  • 所接的工地均经过国家级的标杠工程施工,平台监理全程严苛监工,15项验收标准,不合格砸掉重做
  • 从环保设计,环保材料,环保施工,环保检测四个方面要求,承诺环保不达标全额退款
  • 业主提交投诉,30分钟内受理、24小时内上门确认、48小时内协调解决

河北邯郸

从业5年 / 河北邯郸人 / 河北科技大学

  • 本月预约:12个
  • 成交记录 :0条
  • 作品数:110个
效果图 施工图
-丰台区政馨家园130平现代简约风格设计风格
-丰台区政馨家园130平现代简约风格设计风格
-丰台区政馨家园130平现代简约风格设计风格
-丰台区政馨家园130平现代简约风格设计风格
-丰台区政馨家园130平现代简约风格设计风格
丰台区政馨家园130平现代简约风格设计风格

我家按此装修 需要多少钱呢

设计案例点评

加载更多

暂不咨询 立即咨询 ×