高品质互联网家装平台

老房研究院

老房装修文化艺术节中国老房装修标准指南

已为4057位业主提供老房装修服务

免费预约 开工即省30%
  • 您的称呼
  • 手机号码
  • 所在小区
预约热线:13051527887
为了你的利益及我们的口碑,你的隐私将被严格保密。
x 点击进入北京站>>
选择其他城市:

您的位置: 巧装家 > 设计案例 >

时代之光83平米简约风格设计方案

时代之光83平米简约风格设计方案

小区:
户型:
复式LOFT
面积:
83.0平米
风格:
现代简约
预算:
6.00万元
设计理念:
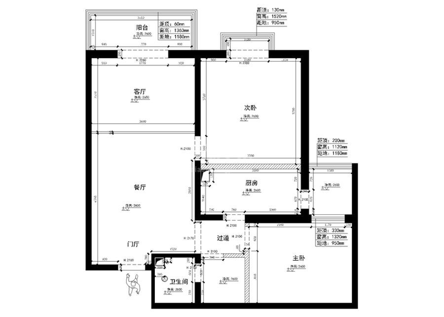
本案例位于西城区时代之光北滨河路,为老房2居室,建筑面积83平米,装修风格定位为简约风格。本案例中门厅利用原有入户门外的空间,隔出了独立的门厅,方便换鞋以及出入东西的置放;餐厅的设计,做出了简约的西厨式酒柜设计,储物增加的同时加大了餐厅的空间,和客厅划分了空间;靠近阳台的客厅设计,自然采光好,而且隐形门电视背景墙的设计在简约风格中运用的异常丰富;干湿分离的卫生间,干区还具备洗衣房的功能;把原来的封闭式厨房设计成了半开放式,让厨房、餐厅、客厅三个空间连贯,吧台的设计也加大了用餐区域,让生活变得更有情调。
分享到:
罗嘉浠

罗嘉浠编号:UZ_2419

级别:

他承诺:
  • 所接的工地均经过国家级的标杠工程施工,平台监理全程严苛监工,15项验收标准,不合格砸掉重做
  • 所接的工地均经过国家级的标杠工程施工,平台监理全程严苛监工,15项验收标准,不合格砸掉重做
  • 从环保设计,环保材料,环保施工,环保检测四个方面要求,承诺环保不达标全额退款
  • 业主提交投诉,30分钟内受理、24小时内上门确认、48小时内协调解决

山东菏泽

从业5年 / 山东菏泽人 / 北方工业大学

  • 本月预约:17个
  • 成交记录 :0条
  • 作品数:116个
效果图 施工图
门厅-时代之光83平米简约风格设计方案
客厅-时代之光83平米简约风格设计方案
主卧-时代之光83平米简约风格设计方案
次卧-时代之光83平米简约风格设计方案
卫生间干区-时代之光83平米简约风格设计方案
厨房-时代之光83平米简约风格设计方案
时代之光83平米简约风格设计方案

两居室;老房

时代之光83平米简约风格设计方案

两居室;老房

我家按此装修 需要多少钱呢

设计案例点评

2016-10-21 13:32:19

好时尚的设计啊,很简单大气,很一处细节都很精致

2016-10-21 10:16:35

简洁时尚,大气又充满质感,真的很符合现代的年轻人居住,很有格调

加载更多

暂不咨询 立即咨询 ×