高品质互联网家装平台

老房研究院

老房装修文化艺术节中国老房装修标准指南

已为4057位业主提供老房装修服务

免费预约 开工即省30%
  • 您的称呼
  • 手机号码
  • 所在小区
预约热线:13051527887
为了你的利益及我们的口碑,你的隐私将被严格保密。
x 点击进入北京站>>
选择其他城市:

您的位置: 巧装家 > 设计案例 >

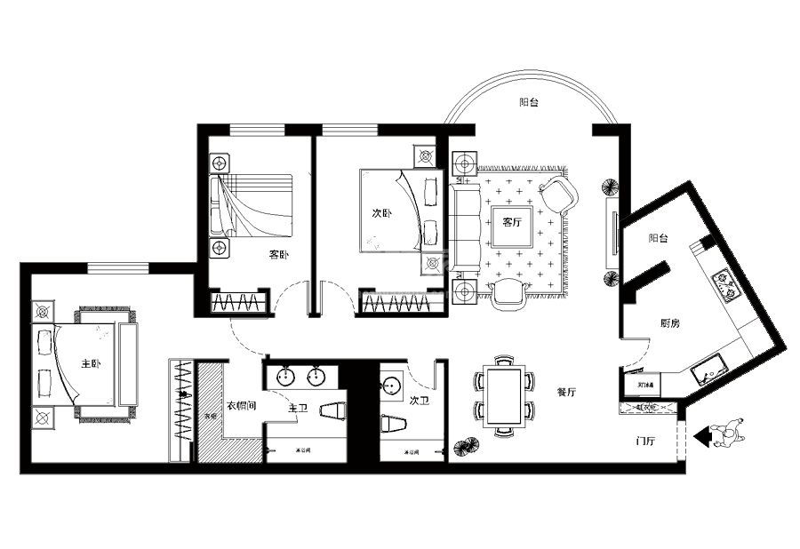
怡景园128平米美式风格设计方案

怡景园128平米美式风格设计方案

小区:
户型:
复式LOFT
面积:
128.0平米
风格:
新古典
预算:
7.00万元
设计理念:
本案例位于北京市朝阳区朝阳门外大街怡景园,为老房三居室,建筑面积128平米,装修风格定位为美式风格。美式风格造就了其自在、随意的不羁生活方式,没有太多造作的修饰与约束,不经意中也成就了另外一种休闲式的浪漫。本案例中美式家居风格的这些元素也正好迎合了时下的文化资产者对生活方式的需求,即:有文化感、有贵气感,还不能缺乏自在感与情调感。
分享到:
罗嘉浠

罗嘉浠编号:UZ_2419

级别:

他承诺:
  • 所接的工地均经过国家级的标杠工程施工,平台监理全程严苛监工,15项验收标准,不合格砸掉重做
  • 所接的工地均经过国家级的标杠工程施工,平台监理全程严苛监工,15项验收标准,不合格砸掉重做
  • 从环保设计,环保材料,环保施工,环保检测四个方面要求,承诺环保不达标全额退款
  • 业主提交投诉,30分钟内受理、24小时内上门确认、48小时内协调解决

山东菏泽

从业5年 / 山东菏泽人 / 北方工业大学

  • 本月预约:17个
  • 成交记录 :0条
  • 作品数:116个
效果图 施工图
客厅-怡景园128平米美式风格设计方案
客厅-怡景园128平米美式风格设计方案
主卧-怡景园128平米美式风格设计方案
次卧-怡景园128平米美式风格设计方案
客卧-怡景园128平米美式风格设计方案
厨房-怡景园128平米美式风格设计方案
卫生间-怡景园128平米美式风格设计方案
怡景园128平米美式风格设计方案

三居室

怡景园128平米美式风格设计方案

美式风格

我家按此装修 需要多少钱呢

设计案例点评

2016-10-23 15:31:09

很有格调的设计尤其是厨房,看着就舒服

加载更多

暂不咨询 立即咨询 ×