高品质互联网家装平台

老房研究院

老房装修文化艺术节中国老房装修标准指南

已为4057位业主提供老房装修服务

免费预约 开工即省30%
  • 您的称呼
  • 手机号码
  • 所在小区
预约热线:13051527887
为了你的利益及我们的口碑,你的隐私将被严格保密。
x 点击进入北京站>>
选择其他城市:

您的位置: 巧装家 > 设计案例 >

豆瓣胡同68平米欧式风格设计方案

豆瓣胡同68平米欧式风格设计方案

小区:
户型:
复式LOFT
面积:
68.0平米
风格:
欧式
预算:
4.00万元
设计理念:
本案例位于东城区朝阳门内豆瓣胡同,为老房两居室,建筑面积68平米,装修风格定位为欧式风格。欧式风格强调以华丽的装饰、浓烈的色彩、精美的造型达到雍容华贵的装饰效果。本案例是奢华主义与现代浪漫主义的完美结合,流线形与直线相互搭配,现代奢华的家具精美华丽,明亮的色彩相互交错,所有豪华的家饰,个性的墙纸相互呼应,此情此景给人充斥着浪漫的诱惑力与华贵,而表现出王者风范。
分享到:
罗嘉浠

罗嘉浠编号:UZ_2419

级别:

他承诺:
  • 所接的工地均经过国家级的标杠工程施工,平台监理全程严苛监工,15项验收标准,不合格砸掉重做
  • 所接的工地均经过国家级的标杠工程施工,平台监理全程严苛监工,15项验收标准,不合格砸掉重做
  • 从环保设计,环保材料,环保施工,环保检测四个方面要求,承诺环保不达标全额退款
  • 业主提交投诉,30分钟内受理、24小时内上门确认、48小时内协调解决

山东菏泽

从业5年 / 山东菏泽人 / 北方工业大学

  • 本月预约:17个
  • 成交记录 :0条
  • 作品数:116个
效果图 施工图
客厅及厨房-豆瓣胡同68平米欧式风格设计方案
客厅-豆瓣胡同68平米欧式风格设计方案
主卧-豆瓣胡同68平米欧式风格设计方案
次卧-豆瓣胡同68平米欧式风格设计方案
卫生间-豆瓣胡同68平米欧式风格设计方案
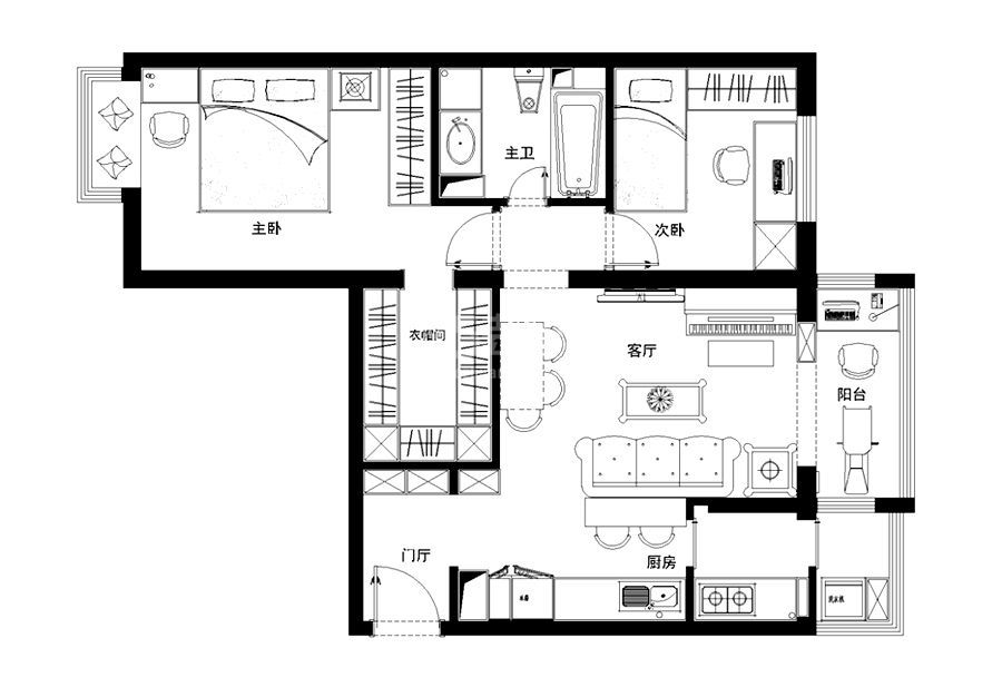
豆瓣胡同68平米欧式风格设计方案

平面布置图

豆瓣胡同68平米欧式风格设计方案

原始结构图

我家按此装修 需要多少钱呢

设计案例点评

加载更多

暂不咨询 立即咨询 ×