高品质互联网家装平台

老房研究院

老房装修文化艺术节中国老房装修标准指南

已为4057位业主提供老房装修服务

免费预约 开工即省30%
  • 您的称呼
  • 手机号码
  • 所在小区
预约热线:13051527887
为了你的利益及我们的口碑,你的隐私将被严格保密。
x 点击进入北京站>>
选择其他城市:

您的位置: 巧装家 > 设计案例 >

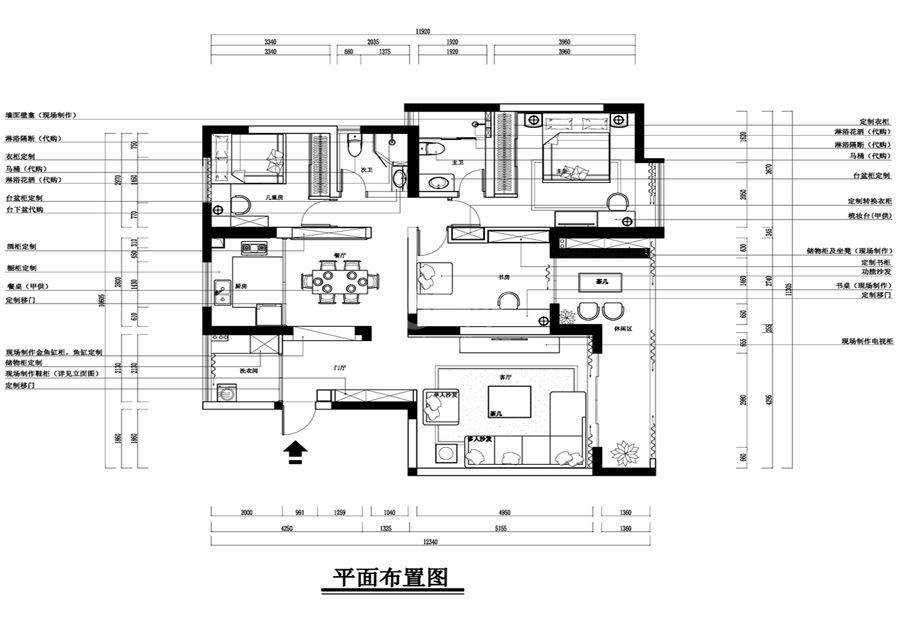
新城国际公寓147平米简约风格设计方案

新城国际公寓147平米简约风格设计方案

小区:
户型:
复式LOFT
面积:
147.0平米
风格:
现代简约
预算:
7.00万元
设计理念:
本案例位于朝阳区朝阳门外大街6号新城国际公寓,为老房四居室,建筑面积147平米,装修风格定位为现代简约风格,本案例以现代简约的风格诠释,以白色为基调,搭配咖啡色和浅灰色,缔造优越和高品位的生活。整个空间在保持功能和谐的条件下,允许个性化的创造与表现,环环相扣的空间以线条的美感尽现时尚简约的家居美学。
分享到:
罗嘉浠

罗嘉浠编号:UZ_2419

级别:

他承诺:
  • 所接的工地均经过国家级的标杠工程施工,平台监理全程严苛监工,15项验收标准,不合格砸掉重做
  • 所接的工地均经过国家级的标杠工程施工,平台监理全程严苛监工,15项验收标准,不合格砸掉重做
  • 从环保设计,环保材料,环保施工,环保检测四个方面要求,承诺环保不达标全额退款
  • 业主提交投诉,30分钟内受理、24小时内上门确认、48小时内协调解决

山东菏泽

从业5年 / 山东菏泽人 / 北方工业大学

  • 本月预约:17个
  • 成交记录 :0条
  • 作品数:116个
效果图 施工图
客厅-新城国际公寓147平米简约风格设计方案
客厅-新城国际公寓147平米简约风格设计方案
休闲区-新城国际公寓147平米简约风格设计方案
休闲区-新城国际公寓147平米简约风格设计方案
书房-新城国际公寓147平米简约风格设计方案
餐厅-新城国际公寓147平米简约风格设计方案
餐厅-新城国际公寓147平米简约风格设计方案
主卧-新城国际公寓147平米简约风格设计方案
儿童房-新城国际公寓147平米简约风格设计方案
厨房-新城国际公寓147平米简约风格设计方案
新城国际公寓147平米简约风格设计方案

平面布置图

新城国际公寓147平米简约风格设计方案

原始结构图

我家按此装修 需要多少钱呢

设计案例点评

加载更多

暂不咨询 立即咨询 ×