高品质互联网家装平台

老房研究院

老房装修文化艺术节中国老房装修标准指南

已为4057位业主提供老房装修服务

免费预约 开工即省30%
  • 您的称呼
  • 手机号码
  • 所在小区
预约热线:13051527887
为了你的利益及我们的口碑,你的隐私将被严格保密。
x 点击进入北京站>>
选择其他城市:

您的位置: 巧装家 > 设计案例 >

龙湖香醍

龙湖香醍

小区:
户型:
面积:
240.0平米
风格:
中式
预算:
23.00万元
设计理念:
中式元素中的屏风造型在现代设计中被夸张与抽象,通过简单几何形体的排列组合,反映出融合现代精神的独特传统韵味;同时,明式家具的几案的复杂装饰也被简化成纯粹的几何体,符合现代快节奏的审美情趣。
分享到:
成鹏

成鹏编号:UZ_4655

级别:

他承诺:
  • 所接的工地均经过国家级的标杠工程施工,平台监理全程严苛监工,15项验收标准,不合格砸掉重做
  • 所接的工地均经过国家级的标杠工程施工,平台监理全程严苛监工,15项验收标准,不合格砸掉重做
  • 从环保设计,环保材料,环保施工,环保检测四个方面要求,承诺环保不达标全额退款
  • 业主提交投诉,30分钟内受理、24小时内上门确认、48小时内协调解决

山东滨州

从业8年 / 山东滨州人 / 武汉大学

  • 本月预约:2个
  • 成交记录 :0条
  • 作品数:10个
效果图 施工图
客厅-龙湖香醍
卧室-龙湖香醍
餐厅-龙湖香醍
卫生间-龙湖香醍
地下室-龙湖香醍
龙湖香醍

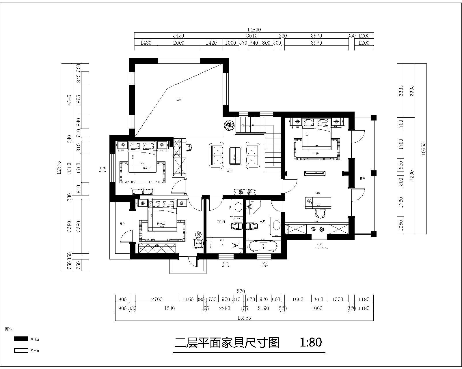
一层

龙湖香醍

二层

龙湖香醍

地下室

我家按此装修 需要多少钱呢

设计案例点评

加载更多

暂不咨询 立即咨询 ×